
Villa T4 à Portet sur Garonne
Au cœur du village, au calme, proche des commodités.
286 000 €
Localisation
Dans le village à:
o 300 m de l’arrêt de bus « La Clé »;
o 500 m des commerces du village, de l’école maternelle et primaire, et de la mairie;
o 2 km de la gare de Portet.


Description
Au RdC : une entrée avec placard, une cuisine aménagée de 10 m², un salon de 27m² donnant sur une terrasse couverte, un WC ;
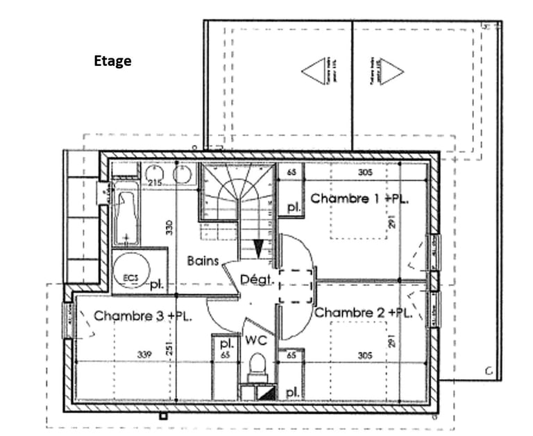
À l'étage : 3 chambres de 10 m² avec placard, spacieuse salle de bain et WC indépendant.
Garage indépendant de 19 m².
Galerie


























Points forts
• Vente de particulier à particulier : vous économisez les frais d’agence de l’ordre de 15000 euros, en effet tous les intermédiaires m’ont affirmé que leur prix de vente serait mon estimation majorée de leur commission ;
• Construction saine:
o Construite par Bouygues Immobilier l’un des plus gros constructeurs de maison individuelle en 2010, qui fête cette année ses 70 ans d’activité ;
o Après 15 ans elle ne présente aucune anomalie, ni trace d’humidité ou fissure.
o Etat de l’installation électrique contrôlé: DDT vierge;
• Maison agréable à vivre :
o Très calme au fond d’une impasse (loin des routes) ;
o Stationnement aisé dans la résidence (en plus des deux places devant le garage);
o Jardin arboré et intime (pas de vis-à-vis);
o Chauffe-eau solaire: eau chaude à) coût nul les jours ensoleillés;
o Les locataires (un jeune couple avec enfant) à qui nous avons donné congés pour cette vente, y sont restés plus de 14 ans.
Plans




Informations diverses
• Année de construction : 2010
• Surface habitable: 87 m² (85 m² CARREZ)
• Surface du terrain : 337 m²
• Type de chauffage : convecteurs électriques
• Boisseau de cheminée en attente dans le salon
• Classe énergie : C GES : D
• Nombre de places de parking sur la parcelle : 3 dont une dans le garage
• Année de construction : 2010
• Taxe foncière : 1613 €
• Elle fait partie d'une ASL dont les charges sont de l'ordre de 50 € par an.
laptop.laporte@gmail.com
+33 6 84 76 39 43
© 2025. All rights reserved.